Big Ideas,
Real Impact.
From Concept to Permit Set!
Every project begins with understanding the clientās vision, functional needs and followed by thoughtful space planning, aesthetic development and technical coordination. Call us today to bring your concept to life.
A look into our creative world.
Explore a curated collection of our past work, where imagination meets strategy. Each project reflects our drive to deliver thoughtful, effective and engaging solutions.
We provide comprehensive design services for residential and commercial projects, delivering complete architectural plan sets, renovation permit drawings and detailed interior design plans with finish and fixture schedules. Our services include custom kitchen and bathroom design, millwork shop drawings and high-quality 3D renderings that help clients visualize their spaces before construction. From concept through documentation we focus on creating functional, code-compliant and thoughtfully designed environments tailored to each clientās vision.
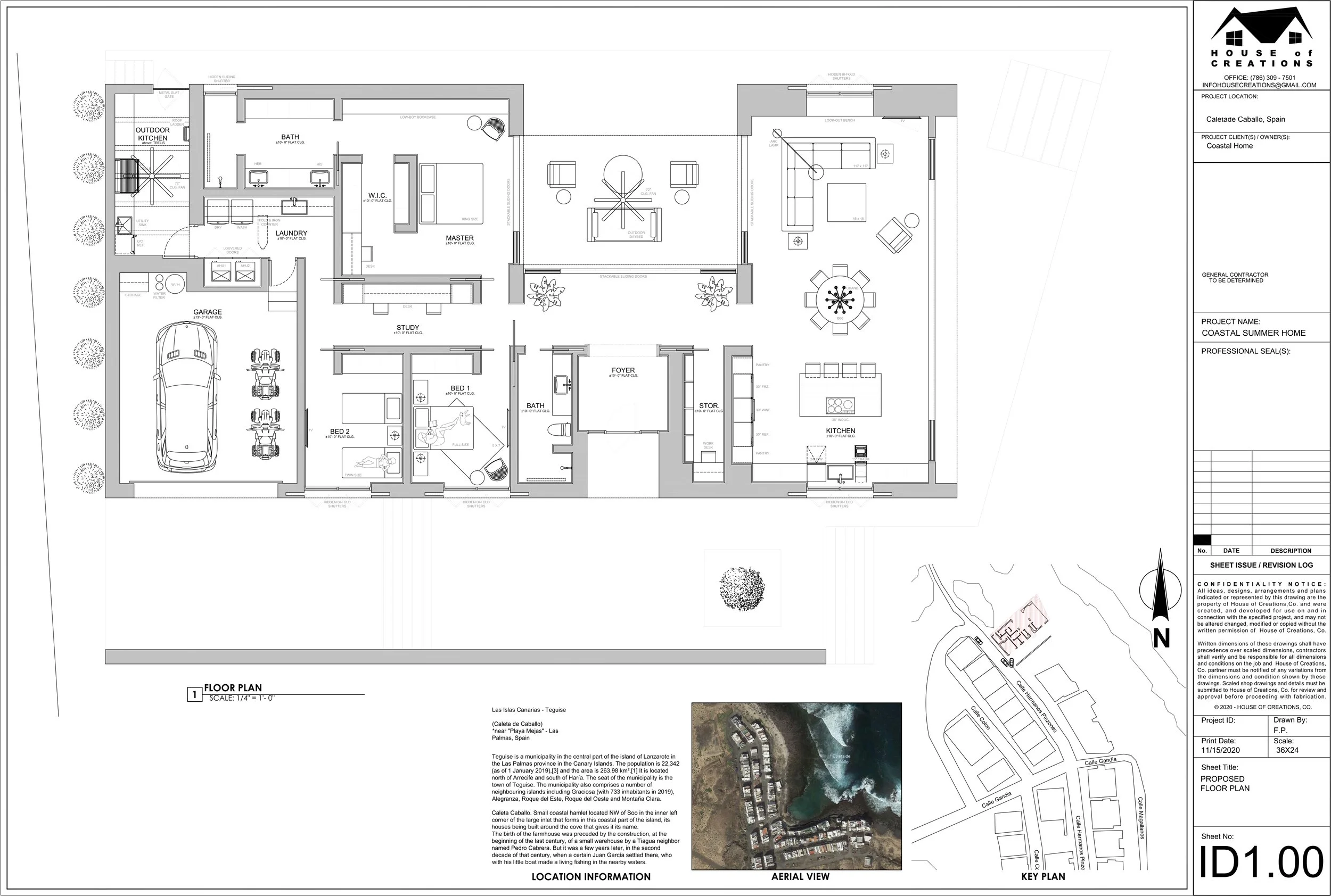
āUnwind in natureās embrace.ā
Client
The Caleta de Caballo Retreat
Year
11/2020
The proposed Caleta de Caballo vacation home located along the tranquil coastal landscape of the Canary Islands. Designed to embrace the natural beauty of its surroundings, the residence offers a relaxed indoor-outdoor living experience with open, light-filled spaces, contemporary finishes and panoramic views of the ocean and volcanic terrain. The retreat serves as a peaceful getaway for rest and recreation blending modern comfort with with islandās distinctive character and laid-back lifestyle.
āWhere faith, wellness and community come together.ā
Client
The New Life Enrichment Center
Year
03/2021
The New Life Enrichment Center envisioned by Pastor Elijah Brooks as as dynamic community hub rooted in a faith-based outreach mission designed to support spiritual growth, personal development and meaningful social connection. The center will provide a welcoming environment where individuals and families can gather for worship, mentorship programs, educational workshops and community events. Planned amenities include a multi-purpose event center for large gatherings and celebrations, a modern media lounge for learning and creative engagement, a fitness and wellness center promoting healthy lifestyles and a recreational game room for youth and family activities. Outdoor features will include a swimming pool, basketball court and tennis court to encourage active living and community interaction. Together, these spaces aim to foster a holistic environment that nurtures faith, wellness, fellowship and positive community impact.
Big City, New Beginningā¦ā¦ā¦
Client
Private Residence - One East Harlem
Year
02/2025
This project involves providing a furniture layout plan for a client who has recently relocated to the One East Harlem building in New York City. The objective is to carefully coordinate the placement of furnishings being transported from Miami, Florida ensuring that all items fit appropriately within the new apartmentās spatial constraints. The planning process focuses on optimizing circulation, functionality and comfort while helping the client prepare the space efficiently prior to the moversā arrival.
Renderingsā¦..

